Stop Treating Mass Timber As A Trend
READING TIME
6:00
MIN
Architecture Construction

Mass timber construction is no longer a niche experiment. According to WoodWorks, there were 2,524 mass timber projects built or underway in the United States as of June 2025, up from roughly 500 in 2020. That represents a more than 5x increase in just 5 years, with consistent double-digit year-over-year growth driven largely by multifamily, education, and office sectors.
Across the U.S., cross-laminated timber (CLT), glulam, and nail-laminated timber (NLT) are shaping mid-rise multifamily projects, civic buildings, and tall timber buildings in major urban cores. The 2021 International Building Code formally introduced three new mass-timber construction types (Type IV-A, IV-B, and IV-C), permitting buildings up to 18 stories and 270 feet in height under specific fire-resistance and encapsulation requirements. States are rapidly adopting these provisions into local codes, accelerating timber high-rise construction in real markets.
Yet most architects still treat mass timber as a material substitution. Swapping concrete for CLT, exposing some wood beams, or adding a sustainability paragraph. That approach will fail.
At slantis, we've taken CLT from concept through construction documentation on projects that required navigating some of the most demanding regulatory frameworks in the country. What we've learned is that mass timber doesn't fail because of the material. It fails due to the process: specifically, the gap between how firms design with timber and how timber is actually fabricated, reviewed, and built.
The Reality Behind Mass Timber Building Code
The 2021 IBC introduced new mass-timber construction types that permit buildings up to 18 stories, and states are rapidly adopting these provisions. But code complexity isn't limited to tall timber towers. Even a CLT project under conventional Type V-B classification requires rigorous coordination across fire-resistance strategies, seismic detailing, and encapsulation requirements, which most firms underestimate. Without digital precision and early coordination, mass timber becomes expensive, delayed, or quietly value-engineered back to steel.
At slantis, we see mass timber as a systems challenge that lives at the intersection of code compliance, fabrication logic, and interdisciplinary coordination. Timber's future isn't in doubt. What's in doubt is whether firms are prepared to operationalize it within the regulatory framework that shapes its growth.

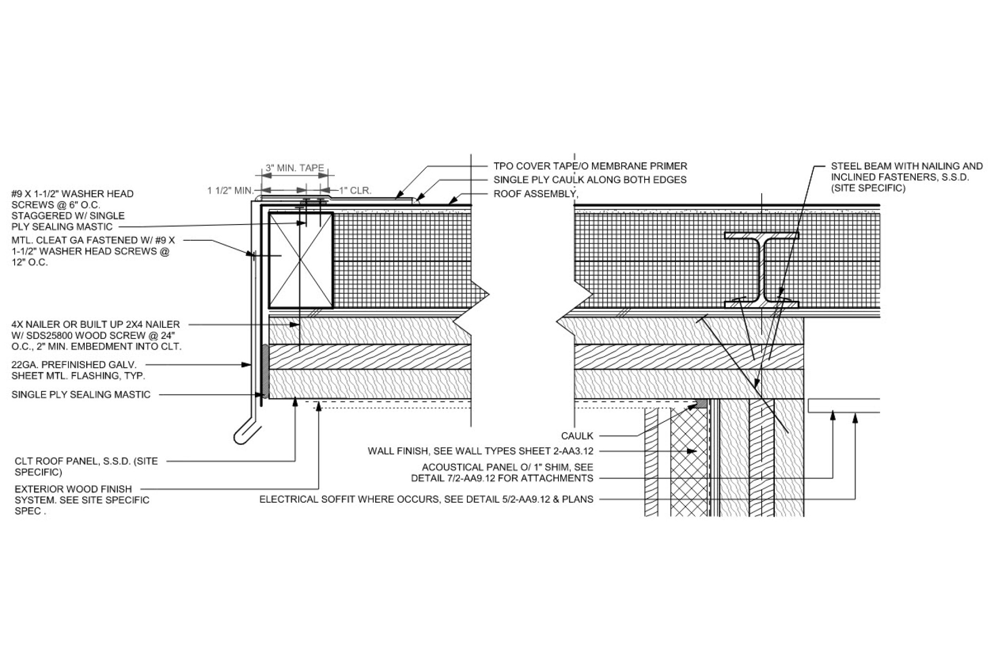
Roof-Wall detail @fascia.
Where Timber Is Being Used Strategically
Mass timber is already being deployed at scale. Tech campuses like Microsoft and Walmart’s Home Office deploy glulam and CLT to accelerate prefabrication and lower embodied carbon. Portland International Airport’s timber roof expansion demonstrates how large-span timber can be coordinated with complex MEP systems and strict seismic requirements. In Milwaukee, the Ascent Tower showed that hybrid timber–concrete structures can reach 25 stories without abandoning conventional construction logic.
But the real test of mass timber expertise isn't whether it works in flagship projects with dedicated innovation budgets.
The question facing most firms is different: whether a firm can deliver it through standard procurement and review processes and on real construction timelines. That is where adoption slows and where practical expertise becomes visible.
California as The Real Testbed
If you want to understand where mass timber is headed, look at California.
The state has expressed clear interest in timber as part of broader strategies for wildfire resilience, forest management, affordable housing production, and embodied carbon reduction. In other words, mass timber is not just a design trend in California; it's integrated into its broader policy.
Research & Manufacturing for Mass Timber
UC Berkeley has been a leader in timber engineering research, contributing to structural testing and seismic analysis that informs code evolution.
Meanwhile, Mad River Mass Timber has pioneered dowel-laminated timber (DLT) production in the state, demonstrating how local manufacturing ecosystems can reduce supply chain risk while advancing innovation.

CLT Educational prototype
Recent project experience illustrates how these forces converge in practice. We recently completed a full DSA plan review for a CLT public school campus in California—one of the most rigorous approval pathways for educational buildings in the United States. The project used 3-ply CLT panels as both the primary structure and exposed interior finish, requiring deep coordination across architectural, structural, mechanical, plumbing, electrical, and fire protection disciplines.
Submitting mass timber through DSA required demonstrating compliance with California's seismic provisions, fire safety requirements, and accessibility standards, all under independent structural verification. Every CLT panel schedule, every base connection detail, and every ceiling assembly had to address how building systems interface with the timber structure before review, not after.
This is what mass timber integration looks like from the architect's seat. Not a material substitution. A complete rethinking of how the building is documented, coordinated, and delivered.
Hybrid Systems Are Not Compromises
Hybrid systems, such as mass timber combined with steel or concrete for lateral stability, cost optimization, or code compliance, are not compromises. They're how timber scales pragmatically across different building types and regulatory environments. The firms getting this right aren't romanticizing pure timber structures. They're making disciplined decisions about where timber adds value and where other systems perform better.
The 4 Pillars of Mass Timber Success
From our experience working on mass timber projects, we see four pillars contributing to successful mass timber construction:
1. Precision
Digital precision is non-negotiable. Mass timber components are prefabricated to exact dimensions, meaning errors in the model translate directly into costly field adjustments.
On a recent CLT project slantis collaborated on, each panel was modeled as a Revit assembly: a single object that carries structural properties, architectural finishes, MEP penetration locations, and connection hardware data. This approach wasn’t simply a modeling preference; it was a fabrication requirement.
CLT panels arrive on site as finished components with pre-routed conduit grooves, predetermined connection points, and exposed wood surfaces that double as the final interior finish. There is no drywall to hide mistakes behind. If the model is wrong, the panel is wrong.
Firms that treat the model as documentation rather than a production tool often discover conflicts only after fabrication begins, when the cost of change is the highest.

Revit Assembly
2. Integration
Mass timber projects succeed when structure, MEP, fire protection, and fabrication strategies are coordinated from the earliest design stages.
With CLT, this coordination goes deeper than most teams expect. Routing electrical conduit through and around CLT panels that also serve as exposed finished ceilings means designing custom chase assemblies, electrical soffits, and sealed enclosures: all resolved in the model before a single panel is manufactured. Grooves routed directly into CLT panels for conduit, penetrations for fire sprinkler pipes and mechanical ducts, suspension system bracing anchored into timber; none of this gets figured out in the field. Every hole in a CLT panel is structural, architectural, and visible.
When these disciplines operate in silos, teams are forced into expensive redesigns or compromises that result in visible defects in the finished space.
3. Advocacy
Because many jurisdictions and insurers are still developing comfort with mass timber, architects often play a key role in explaining the system to stakeholders.
In California, this is especially true for public construction. Rigorous state-level review processes require independent structural verification and certified inspection. Taking CLT through that process demonstrates to plan reviewers (who may have limited exposure to mass timber) that the system meets seismic performance standards, fire-resistance requirements, and accessibility provisions under California's specific code amendments. Successful teams treat this advocacy as part of project delivery, not as an obstacle to it.

CLT Panels in Revit
Ready to Lead the Shift?
Mass timber construction is here. CLT is not experimental. Glulam architecture is not exotic. Timber high-rise construction is no longer theoretical.
But expertise is still rare. We know what it takes to deliver CLT through demanding regulatory reviews, to coordinate exposed timber structures across every engineering discipline, and to build fabrication-ready models in which every panel carries the data it needs to go from factory to finished building. That's what separates firms that talk about mass timber from firms that deliver it.
Mass timber adoption in the U.S. is accelerating. Architects will either lead that shift or watch more technically prepared teams take the work.
If you're serious about timber, let's talk about how to make it real.

slantis visit to Arboreal's CLT Factory

